The GreenHoard® Product Range
PVC Hoarding
Slimmer recycled PVC panels for a cost-effective, sustainable hoarding solution that maintains security and a clean site appearance.
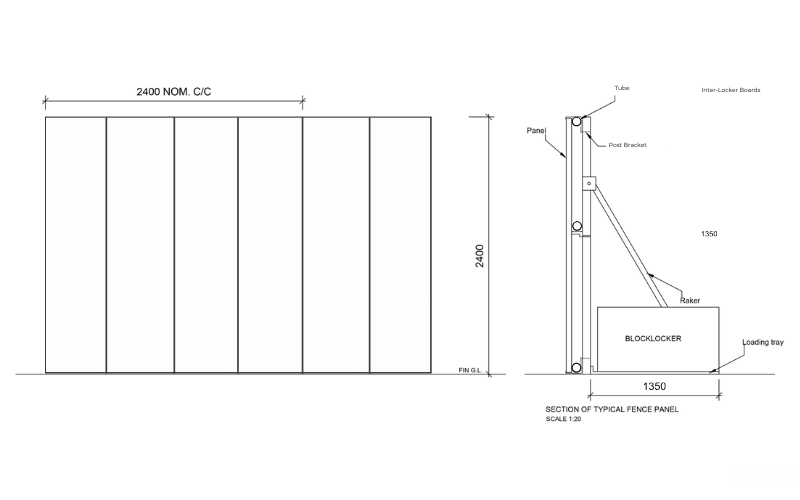
The PVC Hoarding system comprises slender panels made entirely from recycled plastic, engineered for cost-efficiency, durability, and aesthetics. The interlocking design ensures ease of installation and a sleek, modern finish – without compromising on security or performance.
PVC Hoarding Advantages
Sustainability Benefits
- Fully reusable and recyclable
- Closed loop recycled solution
- 100% recyclable at end of life
Commercial & Construction Benefits
- Slimmer panel design
- Nationwide distributor network
- Installation guides available
- Quick and easy to erect, adapt and dismantle
Installation
Our PVC Hoarding can be fitted with a choice of fixing options to suit any site conditions, a bespoke design solution can also be arranged.

Standard Portable PVC Hoarding

In-Ground PVC Hoarding
Access Gates

In-Ground Mesh Pedestrian Access Gate

In-Ground & Portable Mesh Vehicle Access Gate

In-Ground & Portable Mesh Vehicle Access Gate
PVC Hoarding offers a smarter hoarding solution that is slimmer, more cost-effective, and fully sustainable.

If you have any queries regarding GreenHoard® or require any more information, please feel free to contact us using any of the methods below:
